Reference: 33225888

£1,400 per month

Apsley Way, Ingleby Barwick, Stockton-On-Tees

Apsley Way, Stockton-On-Tees, United Kingdom, TS17 5GB

bed 4
bath 2

Share this property

Property Description

*** AVAILABLE IMMEDIALTELY ***

SMITH & FRIENDS are Pleased to Bring to the Market this Superb Four Bedroom Link-Detached House, Spread over Three Floors, Located within the Popular Area of 'The Rings', Ingleby Barwick, Refurbished to a Very High Standard and Immaculate Decorative Order Throughout.

The Property Briefly Comprises of; Entrance Hall, Cloakroom/WC, Lounge, Luxury Refitted Kitchen/Dining Room/Family Room, and Utility Room.
The First Floor Provides Landing, Leading to Master Bedroom with En-Suite Shower Room/WC, a Further Two Bedrooms an a Modern Family Bathroom. The Second Floor has the Fourth Bedroom with Additional Storage at the Top of the Landing. The Property has Gas Central Heating, UPVC Double Glazing, Single Garage, and a Good Sized Rear Garden with Paved Patio.

For a viewing contact SMITH & FRIENDS Ltd - Estate Agents Ingleby Barwick, Early viewing is highly recommended.

UNFURNISHED / NO SMOKERS / NO PETS
REQUIRED EARNINGS: Tenants £ 42,000pa; Guarantor, if required £ 50,400pa
RENT £1,400 PCM
BOND £1,615
(Application is subject to a Holding Fee - please refer to our website for further details)

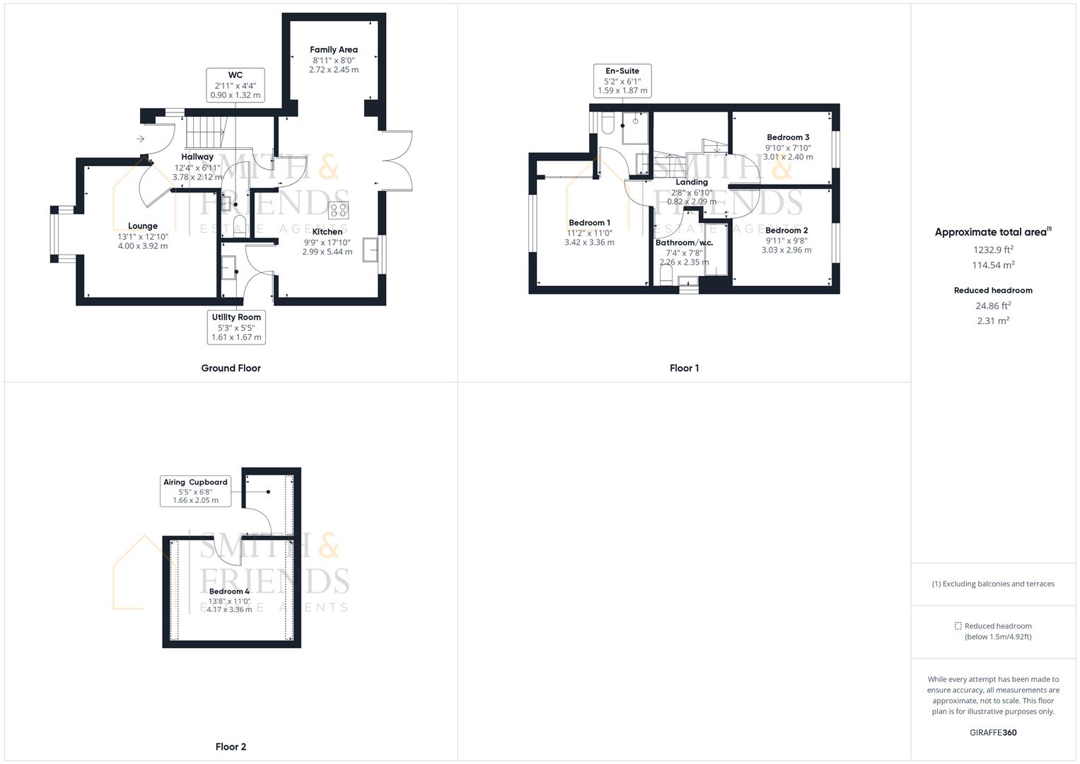
GROUND FLOOR

Entrance Hall

Measurements: 3.78m x 2.12m (12'4" x 6'11")

Downstairss WC

Measurements: 0.90m x 1.32m (2'11" x 4'3")

Lounge

Measurements: 4.00m x 3.92m (13'1" x 12'10")

Kitchen/Dining Room

Measurements: 2.99m x 5.44m (9'9" x 17'10")

Family Area

Measurements: 2.72m x 2.45m (8'11" x 8'0")

Utility Room

Measurements: 1.61m x 1.67m (5'3" x 5'5")

FIRST FLOOR

Landing

Measurements: 0.82m x 2.09m (2'8" x 6'10")

Bedroom 1

Measurements: 3.42m x 3.36m (11'2" x 11'0" )

Ensuite

Measurements: 1.59m x 1.87m (5'2" x 6'1")

Bedroom 2

Measurements: 3.03m x 2.96m (9'11" x 9'8")

Bedroom 3

Measurements: 3.01m x 2.40m (9'10" x 7'10")

Family Bathroom

Measurements: 2.26m x 2.35m (7'4" x 7'8")

SECOND FLOOR

Bedroom 4

Measurements: 4.17m x 3.36m (13'8" x 11'0")

Storage Cupboard / Airing Cupboard

Measurements: 1.66m x 2.05m (5'5" x 6'8")

Property Features

  • Enclosed Rear Garden
  • UNFURNISHED
  • Available Immediately
  • Open Plan Kitchen/Diner/Family Room
  • FOUR BEDROOM LINK-DETACHED HOUSE
  • LOCATED ON THE POPULAR 'THE RINGS' ESTATE
  • STYLISH & MODERN THROUGHOUT
  • SINGLE GARAGE & DRIVEWAY