Reference: 33585736

£75,000

Maple Street, Middlesbrough

Maple Street, Middlesbrough, United Kingdom, TS1 3DS

bed 2
bath 1

Share this property

Property Description

*** IDEAL FOR FIRST TIME BUYER OR INVESTOR FOR BUY-TO-LET ***
*** POTENTIAL FOR HMO DEVELOPMENT ***
*** SOLD AS SEEN ***

New to the Market, this two bedroom end terraced property located close to Teesside University & Middlesbrough Town Centre. This property is an ideal purchase for an investor looking for a buy-to-let or potential HMO development.

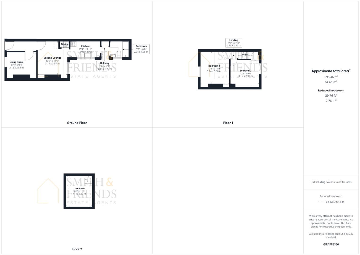
The property briefly comprises of; Hallway, Living Room, Separate Dining Room, Kitchen, Ground Floor Bathroom, and Two Bedrooms to the First Floor and Fixed Staircase to Loft Space.
The rear of the property has an enclosed Yard with on-street parking to the front of the property.

Early viewings are advised, call Smith & Friends Estate Agents - Middlesbrough to arrange a viewing.

GROUND FLOOR

Entrance Hall

Living Room

Measurements: 3.12m x 2.83m (10'2" x 9'3")

Separate Dining Room

Measurements: 3.18m x 3.57m (10'5" x 11'8")

Kitchen

Measurements: 3.09m x 1.82m (10'1" x 5'11")

Bathroom

Measurements: 2.04m x 1.85m (6'8" x 6'0")

FIRST FLOOR

Bedroom 1

Measurements: 3.14m x 3.58m (10'3" x 11'8")

Bedroom 2

Measurements: 3.16m x 2.99m (10'4" x 9'9")

SECOND FLOOR LOFT SPACE

Measurements: 3.15m x 3.60m (10'4" x 11'9" )

Property Features

  • Two reception rooms
  • ON-STREET PARKING
  • Ideal Buy-to-let or HMO Purchase
  • Two Bedrooms with Additional Loft Space
  • Located close to Teesside University and Middlesbrough Town Centre