Reference: 34160378

£175,000

Sidings Close, Hartlepool

Sidings Close, Hartlepool, United Kingdom, TS24 7AQ

bed 4
bath 2

Share this property

Property Description

A modern FOUR BEDROOM end terraced property which offers spacious and well proportioned accommodation spread over three floors. The home occupies an enviable corner position with a large plot, generous rear garden and additional parking space. An ideal purchase for family requirements, with further benefits including two bathrooms, gas central heating, uPVC double glazing and solar panels. An internal viewing comes recommended, with a layout which briefly comprises: entrance hall with stairs to the first floor, guest cloakroom/WC, rear lounge with French doors to the garden, spacious kitchen/diner with modern gloss units, three bedrooms and shower room to the first floor and a large master bedroom, dressing room and bathroom to the second floor. Sidings Close is well situated within walking distance of amenities and within a short stroll of Hartlepool Marina and train station. VIEWING RECOMMENDED.

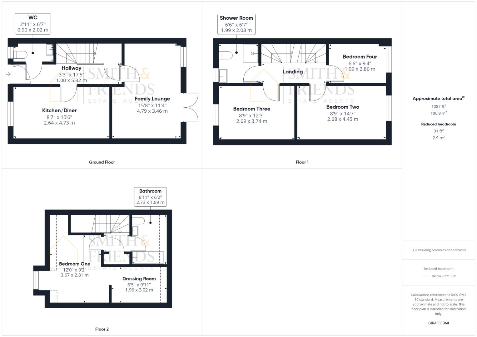
GROUND FLOOR

ENTRANCE HALL

Measurements: 0.99m x 5.31m (3'3 x 17'5)

Accessed via double glazed composite entrance door, staircase to the first floor with useful under stairs storage cupboard, fitted carpet, convector radiator.

GUEST CLOAKROOM/WC

Measurements: 0.89m x 2.01m (2'11 x 6'7)

Fitted with a modern two piece white suite and chrome fittings comprising: pedestal wash hand basin with central chrome mixer tap, low level WC, attractive tiling to splashback, uPVC double glazed window to the front aspect, 'laminate' effect vinyl flooring, convector radiator.

REAR LOUNGE

Measurements: 4.78m x 3.45m (15'8 x 11'4)

Enjoying views of the rear garden with uPVC double glazed French doors and uPVC double glazed window, fitted carpet, television point, convector radiator.

KITCHEN/DINER

Measurements: 2.62m x 4.72m (8'7 x 15'6)

Fitted with a modern range of white gloss units to base and wall level with brushed stainless steel handles and contrasting work surfaces with matching splashback incorporating an inset single drainer stainless steel sink unit with chrome mixer tap, built-in electric oven with four ring gas hob above and extractor hood over, all finished in brushed stainless steel with matching splashback, recess with plumbing for washing machine, space for free standing fridge/freezer, four drawer unit to base level, uPVC double glazed window to the front aspect, dining area with convector radiator.

FIRST FLOOR

LANDING

Staircase leading to the second floor, fitted carpet, convector radiator, access to:

BEDROOM TWO

Measurements: 2.67m x 4.45m (8'9 x 14'7)

uPVC double glazed window overlooking the rear garden, fitted carpet, convector radiator.

BEDROOM THREE

Measurements: 2.67m x 3.73m (8'9 x 12'3)

uPVC double glazed window to the front aspect, fitted carpet, convector radiator.

BEDROOM FOUR

Measurements: 1.98m x 2.84m (6'6 x 9'4)

uPVC double glazed window to the rear aspect, fitted carpet, convector radiator.

SHOWER ROOM/WC

Measurements: 1.98m x 2.01m (6'6 x 6'7)

Fitted with a modern three piece suite comprising: corner shower cubicle, pedestal wash hand basin with central mixer tap, low level WC, attractive tiling to splashback, being full height to shower level, 'laminate' effect vinyl flooring, uPVC double glazed window to the front aspect, extractor fan, chrome heated towel radiator.

SECOND FLOOR

LANDING

Useful built-in storage cupboard, fitted carpet, convector radiator, access to:

BEDROOM ONE

Measurements: 3.66m x 2.79m (12' x 9'2)

A good size master bedroom with uPVC double glazed 'dormer' style window to the front aspect, fitted carpet, convector radiator and dressing room.

DRESSING ROOM

Measurements: 1.96m x 3.02m (6'5 x 9'11)

Double glazed 'Velux' style window to the rear aspect, fitted carpet, convector radiator.

BATHROOM/WC

Measurements: 2.72m x 1.88m (8'11 x 6'2)

Fitted with a modern three piece suite comprising: panelled bath with chrome mixer tap, pedestal wash hand basin with chrome mixer tap, low level WC, attractive tiling to splashback, 'laminate' effect vinyl flooring, double glazed 'Velux' style window to the rear aspect, extractor fan, chrome heated towel radiator.

EXTERNALLY

The property occupies a pleasant corner position with a larger than average plot, the front garden is part block paved to provide useful off street parking, with a gate to the side leading through to the enclosed rear garden which is predominantly lawned with patio area, fenced boundaries and part planted border. An additional parking space is included to the side of the property.

NB

Floorplans and title plans are for illustrative purposes only. All measurements, walls, doors, window fittings and appliances, their sizes and locations, are approximate only. They cannot be regarded as being a representation by the seller, nor their agent.

Property Features

  • Four bedrooms
  • Accommodation Over Three Floors
  • Modern End Terraced Property
  • Gas Central Heating & uPVC Double Glazing
  • Deceptively Spacious & Well Proportioned
  • Bathroom, Shower Room & Guest WC
  • Rear Lounge & Spacious Kitchen/Diner
  • Solar Panels To The Rear
  • Generous Plot With Large Rear Garden
  • Parking To The Front & Side