Reference: 34146344

£189,000

Station Lane, Seaton Carew, Hartlepool

Station Lane, Hartlepool

bed 2
bath 2

Share this property

Property Description

***REDUCED***A spacious and well proportioned two bedroom semi-detached bungalow on Station Lane, in a popular part of Seaton Carew, close to the seafront. The home offers a versatile layout with two reception rooms and a cleverly altered attic space which incorporates three further rooms and additional bathroom. The home is likely to appeal to those seeking the convenience of a bungalow, whilst also appealing to family requirements, with an internal viewing essential to appreciate the space on offer. The property further benefits from uPVC double glazing, gas central heating, south facing rear garden, off street parking and summerhouse.

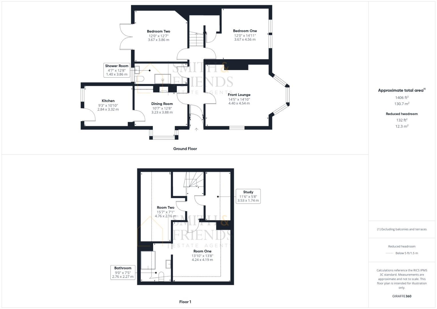
The full layout comprises: entrance vestibule through to the entrance hall with access to the bay fronted lounge and separate dining room which links to the kitchen. The hall also provides access to two generous bedrooms and a modern shower room incorporating a three piece suite and chrome fittings. The attic space offers three separate rooms, with the smaller third room offering potential for use as a home study, the larger room being ideal for guests with access to an additional bathroom.

Externally is a low maintenance front garden, with a block paved driveway providing useful off street parking. The south facing rear garden features patio and lawned areas, with a pleasant summerhouse included. The home is well situated within walking distance of the seafront, close to amenities on Elizabeth Way and convenient for transport links, with easy access to Seaton Carew railway station.

GROUND FLOOR

ENTRANCE VESTIBULE

Accessed via uPVC double glazed side entrance door with fanlight above, internal door with attractive stained glass and fanlight above giving access to the entrance hall.

ENTRANCE HALL

Fitted with attractive oak flooring, coving to ceiling, convector radiator, turned spindled staircase to the first floor/attic space.

FRONT LOUNGE

Measurements: 4.39m x 4.52m (14'5 x 14'10)

A good size lounge with offers a high degree of natural light with a large uPVC double glazed bay window to the front aspect, additional uPVC double glazed window to the side aspect, feature fire surround with 'marble' style back and base, fitted carpet, dado rail, coving to ceiling, television point, two double radiators.

DINING ROOM

Measurements: 3.23m x 3.86m (10'7 x 12'8)

Ideally situated off the kitchen with uPVC double glazed side bay window, attractive cast iron fire surround, built-in storage to alcove, picture rail, coving to ceiling, double radiator to the bay.

KITCHEN

Measurements: 2.82m x 3.30m (9'3 x 10'10)

Fitted with a range of cream 'shaker' style units with 'granite' effect work surfaces incorporating an inset single drainer stainless steel sink unit with mixer tap, recess with Rangemaster cooker and extractor hood over, recess for washing machine and space for dryer, space for free standing fridge/freezer, Baxi gas central heating boiler, uPVC double glazed window to the rear, skylight above, uPVC double glazed door to the rear, coving to ceiling, extractor, modern vertical radiator.

BEDROOM ONE (FRONT)

Measurements: 3.66m x 4.55m (12' x 14'11)

A good size master bedroom with two uPVC double glazed windows to the front aspect, fitted carpet, picture rail, coving to ceiling, walk-in storage cupboard, convector radiator.

BEDROOM TWO (REAR)

Measurements: 3.66m x 3.84m (12' x 12'7)

Currently used as an additional sitting room with uPVC double glazed French doors to the rear garden, fitted carpet, picture rail, coving to ceiling, double radiator.

SHOWER ROOM/WC

Measurements: 1.40m x 3.86m (4'7 x 12'8)

Fitted with a modern three piece suite and chrome fittings comprising: double shower cubicle with chrome frame, glass panelled sliding door and overhead shower, inset wash hand basin with central mixer tap and vanity cabinet below, concealed WC with matching back and vanity area above, modern panelling to splashback, uPVC double glazed window to the rear aspect, modern 'column' style vertical radiator.

FIRST FLOOR

LANDING

Newly fitted carpet, access to three rooms.

ROOM ONE

Measurements: 4.22m x 4.17m (13'10 x 13'8)

A good size room offering a variety of uses, with double glazed 'Velux' style window and blackout blind to the side aspect, fitted carpet, inset spotlighting to the ceiling, television point, convector radiator, sliding door through to:

EN-SUITE BATHROOM/WC

Measurements: 2.74m x 2.26m (9' x 7'5)

Fitted with a modern three piece suite comprising: curved corner bath with dual taps, inset wash hand basin with central mixer tap and grey vanity cabinet below, close coupled WC, double glazed 'Velux' style window to the rear aspect, 'tile' effect vinyl flooring, chrome heated towel radiator.

ROOM TWO

Measurements: 4.75m x 2.16m (15'7 x 7'1)

Double glazed 'Velux' style window to the rear aspect, eaves storage, fitted carpet, television point, convector radiator.

ROOM THREE/STUDY

Measurements: 3.51m x 1.73m (11'6 x 5'8)

Double glazed 'Velux' style window to the front aspect, fitted carpet, eaves storage, television point, convector radiator.

EXTERNALLY

The property occupies a convenient position on Station Lane being close to both amenities and transport links. A block paved driveway provides useful off street parking, with a small front garden enclosed by a brick boundary wall. A gate to the side leads through to the pleasant south facing rear garden which incorporates patio and lawn areas, with a well stocked planted border, fenced boundaries and useful summerhouse included.

SUMMERHOUSE

Measurements: 3.23m x 2.03m plus 2.03m x 1.17m (10'7 x 6'8 plus

Divided in to two areas and accessed via uPVC double glazed French doors, two uPVC double glazed windows, additional stained glass window to the side aspect, fitted carpet, lighting, power points and storage area.

NB

Floorplans and title plans are for illustrative purposes only. All measurements, walls, doors, window fittings and appliances, their sizes and locations, are approximate only. They cannot be regarded as being a representation by the seller, nor their agent.

Property Features

  • Off street parking
  • Spacious Semi-Detached Bungalow
  • Gas Central Heating & uPVC Double Glazing
  • Lounge & Separate Dining Room
  • Two Bedrooms (Scope For More)
  • Well Proportioned & Versatile Accommodation
  • Shower Room & Modern Bathroom
  • Three Attic Rooms
  • Spacious South Facing Rear Garden With Summerhouse
  • Popular Part Of Seaton Carew/Close To The Seafront