Reference: 33870155

Offers over £235,000

Stonebridge Crescent, Ingleby Barwick, Stockton-On-Tees

Stonebridge Crescent, Ingleby Barwick

bed 4
bath 2

Share this property

Property Description

*** SOUTH FACING GARDEN ***
*** SMART HOME FEATURES THROUGHOUT THE PROPERTY ***
*** UPGRADED OPEN-PLAN KITCHEN DINER ***

NEW TO THE MARKET, with Smith & Friends Estate Agents, this immaculate modern Four Bedroom Detached Family Home, situated within the popular Broomhill Area of Ingleby Barwick. Set back from the road, the property has a double width driveway.

The property has been refurbished to a high standard downstairs, comprising of; Entrance Hall, with Spacious Lounge complete with inner sliding doors to the Modern open-plan kitchen/diner with white high gloss wall and floor units complete with grey worktops and a central feature island which includes an induction hob., with French Doors leading from the dining area to the south facing garden.
In addition, the property has a separate Downstairs WC, Second Reception room which was created from a garage conversion, currently used as a cinema room.

The first floor provides; a landing with a master bedroom complete with en-suite and built in wardrobes. In addition there are two further double bedrooms, a fourth single bedroom at the rear of the property and a stylish family bathroom with a freestanding bathtub, and white suite and tiled in a grey stone effect.

Externally, the rear garden benefits from a south facing garden with a timber decking area and well maintained lawn, whilst the front of the property has a double width driveway.

For a viewing contact SMITH AND FRIENDS ESTATE AGENTS - Ingleby Barwick

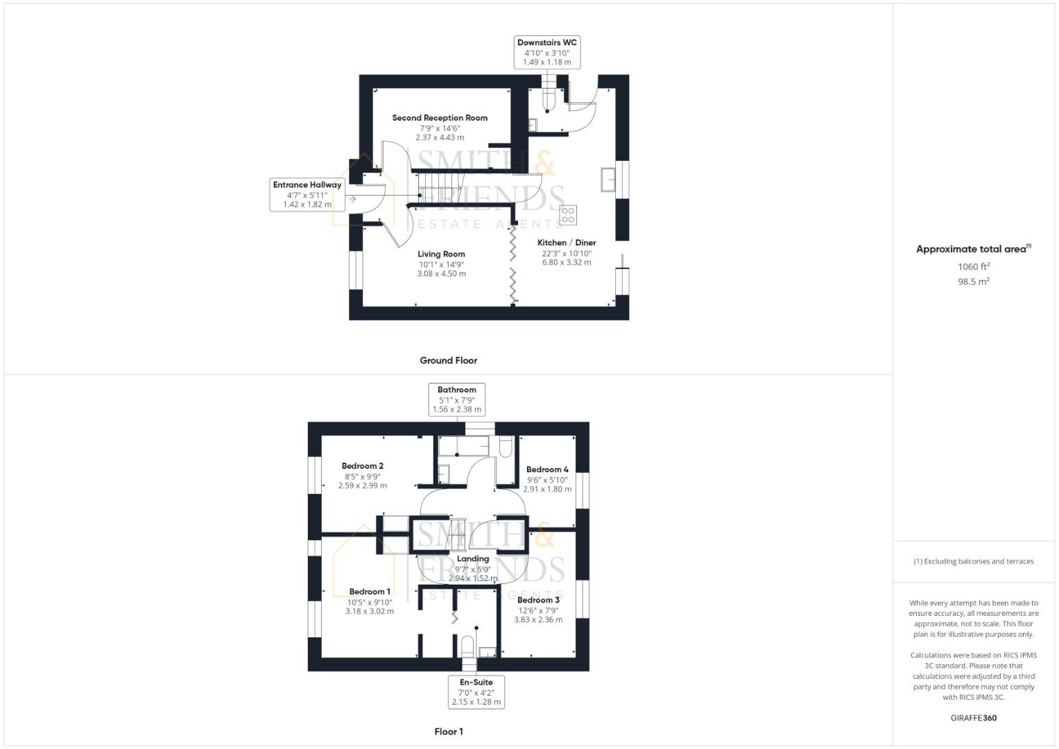
GROUND FLOOR

Entrance Hall

Measurements: 1.42m x 1.82m (4'7" x 5'11")

Living Room

Measurements: 3.08m x 4.50m (10'1" x 14'9")

Second Reception Room

Measurements: 2.37m x 4.43m (7'9" x 14'6")

Kitchen / Diner

Measurements: 6.80m x 3.32m (22'3" x 10'10")

Downstairs WC

Measurements: 1.49m x 1.18m (4'10" x 3'10")

FIRST FLOOR

Landing

Measurements: 2.94m x 1.52m (9'7" x 4'11")

Bedroom 1

Measurements: 3.18m x 3.02m (10'5" x 9'10")

En-Suite

Measurements: 2.15m x 1.28m (7'0" x 4'2")

Bedroom 2

Measurements: 2.59m x 2.99m (8'5" x 9'9")

Bedroom 3

Measurements: 3.83m x 2.36m (12'6" x 7'8")

Bedroom 4

Measurements: 2.91m x 1.80m (9'6" x 5'10")

Family Bathroom

Measurements: 1.56m x 2.38m (5'1" x 7'9")

Property Features

  • South facing rear garden
  • Fully boarded loft
  • Double Width Driveway
  • Converted Garage into Second Reception Room (Currently used as a Cinema)
  • Smart Home with Lighting, Sound System, Thermostat
  • Upgraded Modern Kitchen/Diner with Central Island
  • Recently Install Combi Boiler