Reference: 34478798

£110,000

Greenbank Road, Darlington

Greenbank Road, Darlington

bed 2
bath 1

Share this property

Property Description

*** NO CHAIN SALE ***
*** IDEAL FOR FIRST TIME BUYER OR INVESTOR ***

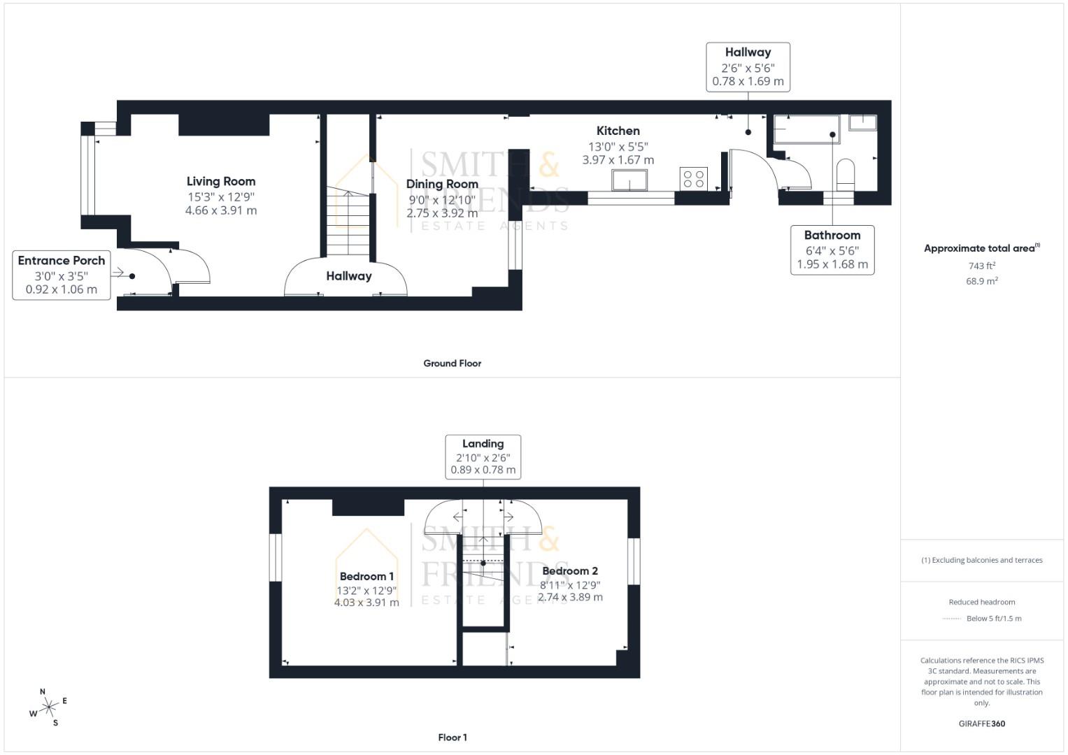
An impressive two bedroom mid-terraced property, conveniently located within walking distance of the Memorial hospital, Cockerton village and Darlington town centre with other local amenities close by.

The property briefly comprises of; Entrance Porch, Living Room with Bay Window, Leading to a Separate Dining Room with under stairs storage cupboard. The rear of the property has a Modern Fitted Kitchen, with an Inner Hall and Family Bathroom.
The First Floor provides a Landing with Two Double Bedrooms.

Externally, the property has a rear back yard with a storge shed and an easy to maintain garden to the front.

For a viewing contact SMITH & FRIENDS - Estate Agents Darlington, Early viewing is highly recommended.

Entrance Porch

Measurements: 0.92m x 1.06m (3'0" x 3'5")

Living Room

Measurements: 4.66m x 3.91m (15'3" x 12'9")

Inner Hall

Dining Room

Measurements: 2.75m x 3.92m (9'0" x 12'10")

Kitchen

Measurements: 3.97m x 1.67m (13'0" x 5'5")

Inner Hall

Measurements: 0.78m x 1.69m (2'6" x 5'6")

Bathroom

Measurements: 1.95m x 1.68m (6'4" x 5'6")

FIRST FLOOR

Landing

Measurements: 0.89m x 0.78m (2'11" x 2'6")

Bedroom 1

Measurements: 4.03m x 3.91m (13'2" x 12'9")

Bedroom 2

Measurements: 2.74m x 3.89m (8'11" x 12'9")

Property Features

  • Close to local amenities
  • Two reception rooms
  • TWO DOUBLE BEDROOMS
  • COUNCIL TAX BAND - A
  • No Chain Sale
  • Ideal Purchase for First Time Buyer or Investor